Imagine 24

Mosilor Boutique II, apartamente noi si moderne !

ID: FX66331 Bucuresti, Ultracentral 15
290.000€ + TVA
Camere
3
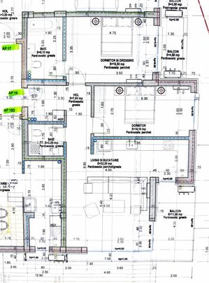
Suprafata utila
79 mp
Etaj
Etaj 4
Bai
2
Parcari
1
An constructie
2026
Descriere
Totul a inceput de la o idee: “ acasa in centrul Bucurestiului”. Ne-am gandit la cineva dependent total de Centrul Bucurestiului, o persoana citadina.

Amplasat la cativa pasi de Calea Mosilor-Bd.Dacia-str. Mihai Eminescu, imobilul  este o noua provocare pentru echipa noastra.
Construim la fel, un imobil cu doar 22 de apartamente, regim de inaltime P+6+R, cu facilitati moderne, finisaje Premium si spatii compartimentate inteligent. Gandul nostru este sa creem o familie formata din cativa vecini care sa devina prieteni. 
 Locurile de parcare sunt la subsol, costul acestora nefiind inclus in pretul afisat, dar avem disponibil cate un loc pentru fiecare apartament.

 Cine este interesat de achizitia unui apartament poate beneficia de serviciile unor brokeri de credit parteneri.

Preturile afisate nu includ TVA, aceasta se achita in plus conform legii aplicabile fiecarui cumparator. 
Speram ca ti-am starnit interesul, ramane doar sa ne suni! 

Suntem siguri ca vei gasi aici, acel loc pe care il cauti. Hai in vizita la noi!

Descrierea constructiva si materiale folosite:
Imobilul este construit dintr-o structura cu radier general, stalpi/grinzi/plansee din beton armat; inchiderile perimetrale si compartimentarile dintre apartamente din caramida Wienerberger de 36cm plus tencuiala/glet/fatada, iar compartimentarile interioare tot din caramida Wienerberger de 15cm plus tencuiala/glet/finisaj alb lavabil/ceramica;
- tencuieli si glet mecanizate;
- fatada ventilata: vata bazaltica 15cm, alucobond plus fibrociment;
- incalzire de pardoseala -Tecce Germania, ex: conductori TECEfloor SLQ-grad inalt de fiabilitate;
- centrala termica in condensatie, proprie pentru fiecare apartament;
- tamplarie PVC cu sticla termoizolanta tripan Salamander-Blue Edition
- balcoanele si terasele inchise cu parapet din sticla securizata;
- Lift Kone 4 persoane;
- ceramica perete/pardoseala in bai si parti comune, fabricatie Italia; 
- usi interior MDF pantografate, cu toc plan si pervaz drept, cu broasca magnetica-Pinum fabricatie Italia;
- usa intrare apartament metalica-blindata cu inchideri multipunct si balamale ascunse- Pinum fabricatie Italia;
- parchet special pentru incalzirea din pardoseala: lemn stratificat-stejar natur
- obiectele sanitare gama moderna-Rocca, accesorii HansGrohe
- accesorii electrice BTicino prize/ intrerupatoare, gama Premium;
- acces securizat in cladire, videointerfon si supaveghere video perimetrala si spatii comune;
- echipare cu instalatie de internet/voce/date/TV cu fibra optica pentru fiecare apartament;
- instalatii de climatizare incastrate prin pereti, individual pentru fiecare apartament/camera; echipamentele terminale fiind optionale;
- toate utilitatile contorizate individual, contorii montati in exteriorul apartamentelor;
Iluminatul pe spatii comune cu lumini LED si lampi cu senzori de miscare, astfel incat costurile comune sa fie cat mai mici. 
Designul spatiilor comune realizat de un studio specializat. 
Acestea sunt cateva dintre elementele speciale, dar va lasam placerea sa descoperiti surprizele placute, atunci cand ne veti vizita !
Suna azi, cine stie? Maine va fi tarziu!
Caracteristici
  • ID:FX66331
  • Nr. camere:3
  • Nr. dormitoare:2
  • S. utila:79.00 mp
  • S. balcoane:16.00 mp
  • S. construita:93.00 mp
  • Comp.:Decomandat
  • Confort:Lux
  • Etaj:Etaj 4
  • Nr. bucatarii:1
  • Nr. bai:2
  • Nr. balcoane:1
  • Nr. parcari:1
  • Pret parcare:30.000€ + TVA
  • An constructie:2026
  • Structura:Beton
  • Tip imobil:Bloc
  • Regim inaltime:S+P+7
  • Orientare:Sud-Est
Specificatii
Curent
Apa
Canalizare
Gaz
CATV
Fibra optica
Centrala proprie
Incalzire pardoseala
Aer conditionat
Izolatie Exterior
Vopsea lavabila
Faianta
Parchet
Gresie
Marmura
Ferestre PVC
Ferestre Termopan
Usa intrare Metal
Usa interior Panel
Bucatarie Nemobilata
Apometre
Contor gaz
Nemobilat
Videointerfon
Lift
Curte comuna
Localizare
Imobiliare BTCO
Esti interesat de aceasta proprietate ?
Proprietati similare
Imagine 380
TOP 0% comision Rep. exclusiva
Ultracentral Dacia-Mosilor 3 camere, terasa
Bucuresti, Mosilor 260.000€ + TVA
3 camere 2 bai 74mp
Imagine 426
TOP 0% comision Rep. exclusiva
Unirii aparatmente gata de mutat ! Buc mobilata si utilata !
Bucuresti, Ultracentral 295.000€
2 camere 2 bai 61mp
Imagine 444
TOP 0% comision Exclusivitate
Mosilor Dacia-Eminescu- Apartamente 2026
Bucuresti, Ultracentral 270.000€ + TVA
3 camere 2 bai 74mp
Imagine 401
TOP 0% comision Exclusivitate
Mosilor, apartamente noi !
Bucuresti, Mosilor 270.000€ + TVA
3 camere 2 bai 74mp
Imagine 378
TOP 0% comision Rep. exclusiva
Ultracentral Dacia-Mosilor
Bucuresti, Mosilor 270.000€ + TVA
3 camere 2 bai 74mp
Imagine 273
TOP 0% comision Rep. exclusiva
Pipera Azur acces A3 spatiu parter cu terasa
Bucuresti, Pipera 300.000€ + TVA
4 camere 2 bai 150mp